image description
The location of the 271-year-old Fort Massachusetts is being gifted to the city by Price Chopper/Market 32 and the Golub family. The City Council will vote on accepting the gift on Tuesday.
image description
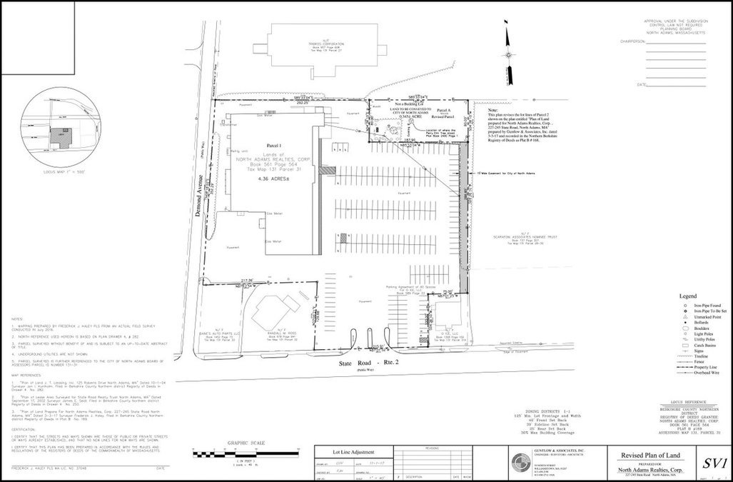
The third of an acre is in the northeast corner of the property; a 15-foot wide access runs along the east side.

Price Chopper Donating Fort Mass Park to North Adams

By Tammy DanielsiBerkshires Staff
Print Story | Email Story

The first fort was surrendered to the French in 1746 and 45 prisoners taken captive. The wood structure was burnt to the ground and rebuilt the following year. Its usefulness had passed by the time of the Revolution. 
NORTH ADAMS, Mass. — Price Chopper is making a gift of one of the city's oldest historical sites: Fort Massachusetts.
 
The park, which includes a chimney from the1930s replica and a plaque, sits in the northeast corner of the parking lot of the closed supermarket. 
 
Neil Golub, Price Chopper/Market 32's executive chairman, said in a statement he was committed to ensuring the conveyance of the third of an acre to the city following the announcement to close the State Road market last year.  
 
"I am so pleased to make this gift to the City of North Adams, knowing that its Historic Commission is dedicated to working with local preservationists to maintain the site on which Fort Massachusetts once stood," said Golub.
 
Mayor Richard Alcombright said on Tuesday he had been working with the Golubs and Wendy Champney, who had really spearheaded the preservation effort, in finding a way to move the process along. 
 
"I wanted to get it done before I left," said the mayor, who is leaving office in December at the end of his fourth term. 
 
Mona Golub, vice president of public relations and consumer services, had come out and walked the site with them not long ago. "They wanted to do this in a thoughtful way," Alcombright said. 
 
They surveyed and delineated a .345-acre rectangle abutting neighboring properties and carved out a  15-wide access along the east side of the property to the Friendly's property.
 
Price Chopper had taken respectful care of the King George's War site for decades and the supermarket's closure had caused consternation at the Historical Commission and Historical Society. There was concern that whoever bought the property would remove the park or prevent access. 
 
A replica of the fort was built by the Civilian Conservation Corps in the 1930s as a museum and meeting place for the Daughters of the American Revolution; it was later sold as a restaurant but was vacant the last years of its existence.
 
Golub Corp. purchased the five-acre property in 1959 and demolished the replica a year later to make way for what was then Central Market and its parking lot. It has, however, maintained the replica's chimney, and a small park and plaque marking its location for many years.
 
"The Price Chopper employees truly understood the significance of Fort Massachusetts to the community in their upkeep over the years," Historical Commission Chairwoman Justyna said in a statement. "We appreciate the Golub's generous gift of this historic parcel to the current residents of North Adams. What an appropriate time of the year. We have much for which to be thankful on this Thanksgiving 2017."
 
On Aug. 19-20, 1746, 900 French and natives of the St. François tribe under the command of Gen. Pierre Rigaud de Vaudreuil besieged Fort Massachusetts, a frontier outpost at what was then East Hoosuck. The 45 colonists surrendered the next day. Col. Ephraim Williams was charged with building and defending the fort but was absent when it was attacked. It was rebuilt in 1747. More information on the fort can be found here.
 
There has been some uncertainty as to the exact location of the fort but Champney, who has written a couple books on the subject, is convinced the DAR had the right spot. 
 
The City Council will vote on accepting the gift of land at next Tuesday's meeting. The Historical Commission will be responsible for the park. 
 
"It's a bit of a closing chapter between what was a wonderful relationship between Price Chopper and the city for 60 years," Alcombright said. "I think this is a very nice way to say thank you to our community."

Tags: donated land,   fort massachusetts,   gift,   historic sites,   municipal property,   supermarket,   

If you would like to contribute information on this article, contact us at info@iberkshires.com.

North Adams School Project Awards $51M Bid

By Tammy Daniels iBerkshires Staff
NORTH ADAMS, Mass. — The School Building Committee has awarded the Greylock School project to Fontaine Bros. Inc. of Springfield. 
 
Mayor Jennifer Macksey said she could "breathe a little better" with a bid contract that comes in nearly $2 million under budget.
 
The committee approved a bid of $50,498,544 on Thursday night that includes two alternates — the rebuild of the Appalachian Trail kiosk and the relocation and reconstruction of the baseball field. 
 
"I will say, all in all, for us to have overall the number of bidders that we had interested in our project, and especially to receive the GC bids that we did, the team Colliers and TSKP certainly did a good job attracting people to us," she said. "But this project ... really shows the testament of the good work that Colliers and TSKP and all of you have been doing throughout this process."
 
Fontaine had the low bid between Brait Builders of Marshfield and J&J Contractors Inc. of North Billerica.
 
The project had been bid out at $52,250,000 with three alternates: moving the ballfield, the kiosk and vertical geothermal wells. 
 
Committee members asked Timothy Alix of Collier's International, the owner's project manager, about his impressions of the bidders. He was most familiar with Fontaine, having worked with the company on a half-dozen school projects and noted it was the contractor on the Mountain View Elementary School in Easthampton that the Massachusetts School Building Authority has held up as an example school. He also had some of his colleagues call on projects that he had not personally worked on. 
 
View Full Story

More North Adams Stories