NORTH ADAMS, Mass. — The owners of the Tower & Porter Block are planning to renovate the 125-year-old structure into a boutique hotel.
Michael Gazal and Veso Buntic of Long Island, N.Y., operating as Eagle Street Holding LLC, have an application before the Planning Board on Monday for a special permit for a change of use to convert the building into a contemporary hotel.
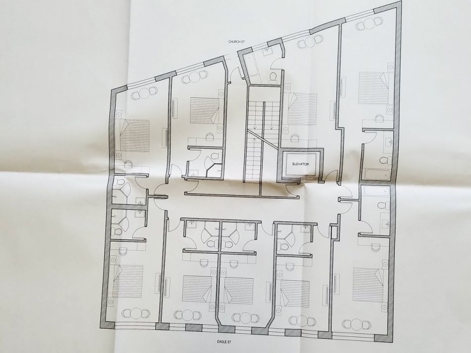
Plans drawn up by Barry Berg Architect of Brooklyn, N.Y., would create 27 double-occupancy rooms of varying size, each with private bath, in the 3,330 square-foot building. The two storefronts are envisioned to become restaurant and bar spaces. The basement will be used for services, storage and food and beverage preparation.
"Energy efficiency and sustainability will be implemented according to state and local requirements," according to the letter from the architect. "The existing structure will be preserved in the conversion."
The plans also include repairing and updating structure, such repointing the brick, replacing the single-pane windows with double-glazed, repairing and painting the trim and cornices the existing blue color, and reconfiguring the roof to improve drainage. A canopy will also be added over the center lobby entrance.
The lobby will be on the first floor on the Eagle Street side; the building also fronts North Church Street from the second floor. To make the building accessible, the plans are to keep the entrance as the center door, which will be lowered to the sidewalk, and install a wheelchair lift from there to the first-floor lobby. The exterior landings on the two retail sections will be extended into the building because they are not currently code-compliant.
Parking would be in reserved spots in the Center Street parking lot. According to the plans, guests would approach the hotel via the passageway between Desparados and Eagle Street Artisans.
The four-story brick building at 34-36 Eagle St. has been vacant for years. It was purchased in 2014 by a New York woman who was unable to bring her vision of the building to life. Gazal and Buntic purchased the property in November 2016 for $60,000. They bought the Dowlin Block on Main Street six months later.
The city has assessed the property the building sits as worth more than the structure: $70,800 for the land and $22,300 for the building. The block currently contains 11 units, with nine rooms and four bedrooms.
The Tower & Porter Block takes its name from the two plumbers who built it, according to local historian Paul W. Marino, who notes their faded advertisement can still be made out on the building's south wall.
When the building was sold in 2014, Marino said it was notable for its architecture and the cupola on the east side. The building's fire escape on Church Street, with its ringed stars on each step and a counterbalance that runs through a wooden shaft, is one of the few left in the city.
The storefronts on the Eagle Street have their original casings and once held the offices of Elder Printing that consolidated its operations and moved to Williamstown more than 20 years ago. A number of businesses operated out of the structure and rooms were rented out in its upper floors. Former Mayor John Barrett III had often raised the potential for a boutique hotel in the building.
Should the plans be approved, the project will be the latest hotel construction in North County. Tourists, the former Redwood Motel, is nearly completed and two hotels are under construction in Williamstown — the new Williams Inn and a 95-room hotel at the site of the former Grand Union. Greylock Works in North Adams also plans a hotel component as part of the renovation of the massive former textile mill.
If you would like to contribute information on this article, contact us at info@iberkshires.com.
Your Comments
iBerkshires.com welcomes critical, respectful dialogue. Name-calling, personal attacks, libel, slander or foul language is not allowed. All comments are reviewed before posting and will be deleted or edited as necessary.
No Comments
North Adams Library Friends Receive $25K Bequest From Late Paul Gaudreau
By Tammy DanielsiBerkshires Staff
NORTH ADAMS, Mass. — The Friends of the North Adams Public Library was gifted $25,000 by the late Paul Gaudreau.
The Drury High graduate had great respect for the library and its service to the city, said his good friend Richard Taskin, and had entrusted him with the check before his death on Sunday at the age of 64.
"He understands the importance of the library as a crown jewel of our city. And he loved this city and he loved this country," said Taskin, a library trustee. "He was in the National Guard. He was concerned about his city. He was concerned about his country. ...
"He read a newspaper every single day of his life and cared about public affairs."
Taskin presented the check to Friends President Bonnie Rennell on Thursday evening at the end of the trustees' meeting.
Gaudreau was a youth sports coach, and had retired from Williams College. He had already donated CDs to the library and had enjoyed seeing Jeff Tweedy of Wilco perform at the library. Taskin said Gaudreau was one of the hardest working people he'd ever known and, his voice breaking, his fantasy baseball partner.
He'd first passed the check to Chair Sarah Farnsworth, who gasped "oh my" when she read the amount.
The Drury High graduate had great respect for the library and its service to the city, said his good friend Richard Taskin, and had entrusted him with the check before his death on Sunday at the age of 64.
click for more
The "Into Light" exhibit is sketching a new path toward transforming the conversation around addiction — one portrait and story at a time. click for more
Adan Wicks scored 38 points, and the eighth-seeded Hoosac Valley basketball team Saturday rallied from a nine-point first-half deficit to earn a 76-67 win over top-seeded Drury in the Division 5 State Quarter-Finals. click for more