The former doctor's building has been vacant for a couple years and was expected to be demolished.
NORTH ADAMS, Mass. — The Planning Board gave its approval on Monday to the relocation of the former doctor's building on State Road to serve as the new administrative building for Harriman & West Airport.
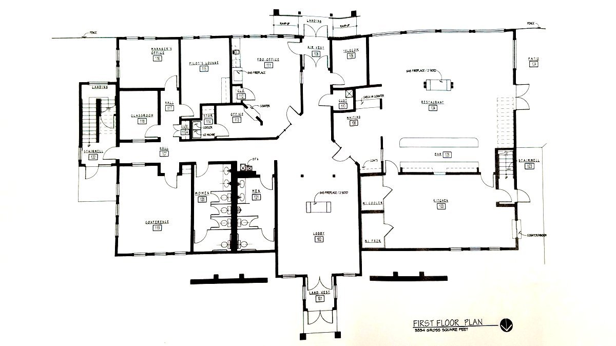
"This is just a spin-off of that original building," Thomas Mahoney, director of airport engineering for the state Department of Transportation's Aeronautics division, told the planners.
The airport had been one of 17 in the state that was found to be lacking in suitable administrative buildings. The airports were divvied up into groups but the funding was delayed after the first group's buildings were completed. North Adams, in the second group with Taunton and Plymouth, came up short for its estimated $4 million building.
"In the meantime, the airport took possession of a vacant building on airport land and it was decided in a cost-cutting measure to move the building into the location of the previously approved building," Mahoney explained.
The former Northern Berkshire Family Practice, an 8,700 square foot facility built in 2001 on leased airport land, was donated to the city by Berkshire Health Systems, which acquired the structure with the assets of Northern Berkshire Healthcare. The building's been vacant for a couple years since the doctor's practice moved to the former hospital campus.
Architect David Westall said the function, location and parking will be the same as the prior application.
"It is an adaptive reuse of an existing building that if this would not be done, would more than likely be demolished," he said.
The structure will contain administrative offices and a small public restaurant, although that will be slightly larger than the previous version with 62 seats. The second floor will also hold offices, storage and mechanicals.
"Of course, architecturally it will look different than what was approved two years ago," Westall said. "Because this is an existing building we are adapting rather than building from scratch. Two years ago, it was more contemporary building ... but we're having to take the existing building and sprucing it up a bit."
The structure will have new siding, roof and windows, including dormers for the upper section, and an exterior staircase added to the east side. It will also be more energy efficient with new insulation and heating and cooling system.
"We're doing our best to jazz it up a bit," Westall said.
Planner Lynette Bond asked if there would be parking for people using the planned Mohawk Bike Path, which will have a terminus at the airport, who might also stop at the restaurant. Peter Enzien of Stantec, the airport's engineer, said yes.
"It's been the desire of the Airport Commission and the airport to do exactly that, to be able to attract folks who are biking and have a public space for them to sit and view the airfield," he said.
Bids for the project are expected to go out in late July and be opened by August.
In other business, the board approved:
• An application by Christian Brindel to operate a retail gallery at 40 Eagle St. Brindel said the store, Moonlight Collection, would be a boutique offering art, musical instruments and women's fashions. He said he had lived in the Florida Keys but had lost everything in a hurricane and recently moved to North Adams to start anew.
• An application by Nicholas Tardive and Julia Daly to reopen a restaurant at 303 Ashland St. Tardive said they hoped to pull in the college crowd that had patronized the Parlor Cafe at that same location. "They did a really good job of opening it up to the students at MCLA," he said. The plan is to offer mostly vegan and vegetarian foods, sandwiches, and coffee and do open mic nights, music and trivia.
• An application of Blackinton Operating LLC (Tourists) to operate offices at 900 State Road. Project manager Eric Kerns said the building, across from the Trail House Restaurant, would be used for management and extra parking for staff. It was most recently the Orthopedic Center.
• Another set of hanging signs that are to be installed on Eagle Street as part of the NAMAzing Eagle Street Initiative. They will also have to be approved by the City Council.
The board rejected, however, a special permit to turn a two-unit building at 84 Washington St. into a three-unit apartment building. Owner David Valego said he was having trouble renting out the two-bedroom unit because it was oversized and tenants didn't like the layout and heating bills. Because of the configuration, he could separate it into two one-bedroom units using the two existing bathrooms and adding a kitchen.
Valego had already put up a wall, however, and several planners evinced concern over his proceeding without proper permits and the potential issues with parking and traffic. Leary cautioned that parking was under the purview of the Zoning Board of Appeals but Planner Lisa Blackmer said she had driven by the building and real concerns about the size of the lot for the existing units.
Approval required a two-thirds, or at least six, votes. The final tally was 5-3, with Blackmer, Kyle Hanlon and Brian Miksic voting against.
If you would like to contribute information on this article, contact us at info@iberkshires.com.
Your Comments
iBerkshires.com welcomes critical, respectful dialogue. Name-calling, personal attacks, libel, slander or foul language is not allowed. All comments are reviewed before posting and will be deleted or edited as necessary.
No Comments
Teacher of the Month: Kaylea Nocher
By Sabrina DammsiBerkshires Staff
NORTH ADAMS, Mass. — First-grade students in Kaylea Nocher's class feel secure and empowered in the classroom, confidently embracing mistakes as they take charge of their learning.
This safe and fun atmosphere has earned Nocher the iBerkshires Teacher of the Month designation. The Teacher of the Month series, in collaboration with Berkshire Community College, features distinguished teachers nominated by community members. You can nominate a teacher here.
Nearly a dozen parents and colleagues nominated the Brayton Elementary School teacher, praising her dedication, connection to students, and engaging classroom environment — going above and beyond to foster growth in her students.
"My students are the most important part of the job, and instilling love and a love for learning with them is so valuable," she said.
"We have these little minds that we get to mold in a safe and loving environment, and it's really special to be able to do that with them."
Nocher has built her classroom on the foundation of love, describing it as the umbrella for all learning.
"If you have your students feel loved… in the sense that they have a love for learning, they have a love for taking risks, they have a love for themselves, and they can use that in everything that they do," she said.
Nearly a dozen parents and colleagues nominated the Brayton Elementary School teacher, praising her dedication, connection to students, and engaging classroom environment. click for more
For many years, the town of Lee has had to struggle with an outdated and crowded Police Department station located in its Town Hall, which was built in 1874. Its nearby fire station was originally constructed to house horse-drawn firefighting vehicles. click for more
The organization had successfully grown over the past 20 years and, by the end of the decade, would see its campaign drives pass the $100,000 mark and the number of agencies under its umbrella grow to 17. click for more
The City Council got an update on what's up in the school system and its president was inducted into the mayor's Women's Leadership Hall of Fame. click for more