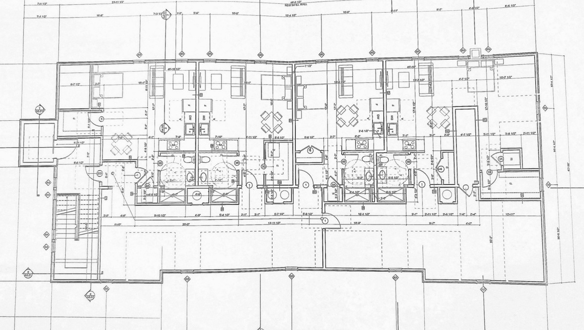
The old community center on East Street has been transformed into an apartment building. The units on the first and second floors are nearly complete, and four studio apartments will fill out the third floor. Plans provided to the town showing how the studio units will be laid out.
The former community center in East Street before its conversion.
NORTH ADAMS, Mass. — The transformation of the former community center into housing will include four more units.
The Zoning Board of Appeals on Tuesday approved an amendment to Hinton's Berkshire Homes LLC special permit to increase the number of apartments in the building from nine to 13.
Robert and Kristin Hinton explained that adding four studio apartments to the third floor of the 1920 structure would give assurance to their lenders.
The request was prompted over installation issues with the fire suppression system.
"The financing won't come through without 13 [units]," Kristin Hinton said. "Our lender will not include the cost of the water main with nine units."
The property was purchased from the town by Hinton's Berkshire Homes LLC for $25,000 in 2022. Hinton was the only bidder on the property, which had been owned by the town since 1977.
The company had planned to invest about $5 million into the property, with an estimated $1 million first phase to be completed by 2023. The $4 million second phase was to include another 27 units and a day-care center. All the apartments will be market rate.
Robert Hinton said the one- and two-bedroom units on the first two floors are nearly complete and are in the patching and painting stage. "It's been a long process but it's getting there," he said.
Kristin Hinton said there are already tenants being lined up, as they had put out feelers to gauge interest and calm lenders.
"The interest is through the roof," she said, with 60 applicants so far from around the country for units on all three floors. Many are professionals in education, culture and medicine, "good people for the community, we can only assume."
Robert Hinton said the company is trying to work out issues with the Water Department about the fire suppression system and running a water line with enough pressure.
The Hintons have been in discussion with neighbor John Cowie on the possible use of a pit, or vault, near the property; they are also considering a installing a tank using one of the other two lines coming into the property.
Cowie brought up problems with the water line, the condition of the driveway he shares with the property and the remortgage on the property but the ZBA said it had no purview on those issues.
Abuttor Craig Corrigan of Randall Street objected to the changes already made to the building to add the third-floor units. He had raised concerns over privacy issues two years ago because his home sits below the East Street land.
"We were shown drawings of the roof line ... they tore the roof off the back of the building and went up another story," he said. "They never told us there would be three stories on that building ... I feel I got lied to the first time."
The small dormers on the building have been removed and the back section raised higher to accommodate the units.
"We always intended doing the third floor but not at this point," said Robert Hinton.
Chair Glen Diehl pointed out that the ZBA and Planning Board had approved the development and its amended version to have nine units on the first and second floor.
"We approved a plan based on a three-story building," he said. "It's still a three-story building but with a different configuration."
The initial agreement with the town was to construct eight units in the existing building, a former rest home for nuns, and at least 20 units on the property in the next phase. The special permit in 2023 amended the number in the building to nine.
"It seems the additional units are what is expected," said ZBA member Raymond Gargan Jr.
The Mahogany Room was filled to capacity but only Corrigan and Cowie spoke at the meeting.
In other business, the board reorganized, keeping David Rhinemiller (who arrived late) as chair and Diehl as vice chair.
Gargan updated the board on reviewing the town's signage bylaw. He has taken on the task after the lengthy discussion over signage for Window World in April. Members noted how many variances have been issued because the town's bylaws are not in line with modern signage. Gargan said he would be meeting with Community Development Director Donna Cesan and would bring the results back to the board.
If you would like to contribute information on this article, contact us at info@iberkshires.com.
Your Comments
iBerkshires.com welcomes critical, respectful dialogue. Name-calling, personal attacks, libel, slander or foul language is not allowed. All comments are reviewed before posting and will be deleted or edited as necessary.
No Comments
Local Realtor Earns GRI Designation
PITTSFIELD, Mass. — Bishop West Real Estate announced that Pam Tworig, Realtor in the firm's Berkshire County offices, has earned the Graduate, Realtor Institute (GRI) designation through the Massachusetts Association of Realtors.
The GRI designation represents 90 hours of advanced, in-class real estate education, covering topics such as professional standards, contracts, finance, marketing, technology, and risk reduction. Realtors who achieve the GRI designation are recognized nationwide as having attained one of the highest levels of professional training in residential real estate.
The Graduate, Realtor Institute program meets rigorous standards established by the National Association of Realtors and is designed to help real estate professionals better serve buyers, sellers, and investors through enhanced knowledge, improved skills, and a deeper understanding of the industry.
Peter West, Co-Founder and Vice President of Bishop West Real Estate, congratulated Pam on this achievement.
"The GRI designation is truly the foundation for Realtors who want to elevate their craft," West said. "Holding a real estate license alone does not make someone qualified—ongoing education and mastery of the fundamentals are what set great professionals apart. Pam continues to demonstrate her commitment to excellence, and we are incredibly proud of her."
Corey Bishop, Co-Founder and President, also praised Pam's accomplishment and emphasized the company's dedication to professional development.
"Bishop West Real Estate agents hold more designations and advanced credentials than those at any other brokerage in Berkshire County," Bishop noted. "Pam embodies the standard we set for our team, and her earning the GRI designation reinforces our commitment to being the most knowledgeable and skilled real estate professionals in the region."
The holiday season is here, and Whitney's Farm, located on Route 8 in Cheshire, has merchandise and food that can put you in the festive spirit. click for more
Hoosac Valley Regional School District officials have made a point of recognizing the achievements of their students at School Committee meetings — but on Monday, it was the instructors' turn. click for more
The Wildcats marched 84 yards in a drive that consumed 11 minutes, 17 seconds of the third quarter for a critical touchdown in a 48-36 win over Boston’s Cathedral High in the quarter-finals of the Division 8 Tournament. click for more
Evelyn Julieano and Leanne Maschino each put down seven kills, and the Lenox volleyball team came out strong in advancing past Whitinsville Christian in three sets in the Division 5 State Tournament quarter-finals on Friday.
click for more
Every month, local businesses partner with us to provide students in grades one through eight at various schools the opportunity to create an ad. click for more