image description
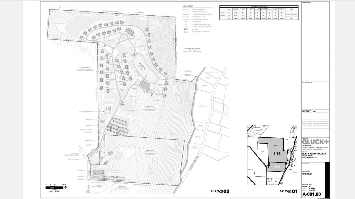
An illustration from 196 Marine LLC's application for a luxury resort on Notch Road in North Adams.
image description
image description
image description

North Adams Glamping Project Teams With Luxury Resort for New Approvals

By Tammy Daniels iBerkshires Staff
Print Story | Email Story
NORTH ADAMS, Mass. — Just last fall, wellness and fancy tents were the core of the glamping proposal for Notch Road.
 
On Monday, developer Benjamin Crespi of 196 Marine LLC, was back before the Planning Board with a dramatically different proposal: 49 two-bedroom tourists cabins with a restaurant and recreational amenities.
 
He was approved with a lengthy list of conditions hammered out between the project and a group of residents represented by attorney Alexandra Glover of Lazan Glover & Puciloski.
 
"After I think multiple rounds and many discussions with neighbors to understand what their reservations about the project were, we went back to the drawing board," said Crespi. "The main critical issues were the fact that my last permit allowed me to be open to the general public.
 
"There was concerns about the number of events and the size of those events. There was concern about noise impact in the neighborhood, traffic volume, traffic routing and wildlife interaction."
 
He detailed the 19 issues that the neighbors had and determined the way forward was to limit access only to paying customers and not open to the public for events.
 
"It was very clear that I had to reduce the volume of people on site. So if I reduce my guest count, and I've lost those profit centers, then I need to offset by going to a higher level of service. That's exactly what I've done," Crespi said.
 
The project's had a couple iterations since first appearing before the Planning Board back in 2019. It's original developers posed seasonal tents on platforms and a cafeteria in what was a residential home on the property. Planners had nixed the idea of tiny homes and Airstreams.
 
Crespi was approved last October for year-round camping in 49 high-end tents, with a lounge and sauna in the former family home to focus more on wellness.  
 
This time, he said the cabins, along with significant modifications to existing buildings, will support a wellness and recreation enterprise. This "regenerative tourism" will be achieved by partnering with Nayara Resorts, a luxury hotel brand that prides itself on its sustainability and eco-tourism efforts.
 
These include converting the single-family home into a 15,000 square-foot lobby and restaurant and adding a 2,000 square foot restaurant onto the farmhouse on the site.
 
"These supporting facilities, such as the restaurants and wellness center, are for guests only and will not be open to the public," according to documentation accompanying the permit application.
 
"The development is also considering an event space tent on the site that will host up to 150 additional non-guest attendees and will be seasonal. We anticipate around 20 events to be held in the space annually, where guests already lodging at the site book a larger space for other guests and non-guest attendees."
 
The buildings will be done in contemporary black-stained wood, black metal roofs, glass and bronze metal flashing, with the exception of the farmhouse, and with green roofs were appropriate to reduce the visual impact. Some of the work will by done by B&B Micro Manufacturing of Adams. 
 
The application states that a landscape architect will design a phased management plan to recreate a semi-forested condition with the reintroduction of native trees and plants.
 
"Material selections, lighting strategies, and landscape design will emphasize natural textures, dark-sky sensitivity, and a restrained visual presence, minimizing both ecological and aesthetic impacts," according to the application, with the goal of obtaining DarkSky certification
 
Crespi noted that the plans would limit parking to the parking lot with access to the cabins by bike or golf cart and that it will only touch 4 or 5 percent of the property's 145 acres, far less than the 20 percent allowed. The amenities on site are expected to reduce traffic in and out Notch Road.
 
"We're estimating 50-plus construction jobs and a multi-year project," he said. "Our opening budgets, currently assume 75 full-time positions."
 
The project is partnering with Nayara Resorts, an international luxury brand that prides itself on sustainability and ecological management. 
 
Leo Ghitis, CEO and co-founder of Nayara, offered examples of environmental work done on behalf of its resorts and the areas they are located, such as rebuilding coral reefs, reducing waste and restoring natural habitats. 
 
"Every one of our resorts is carbon neutral. We as a brand, are considered the global leaders, the leaders in the world in sustainability and social responsibility," he said. "We do things that no other brand that I know does, for example, in terms of social responsibility for us, it is a real mission to make sure that the success of our properties also translates improving the standard of living and the quality of life of the communities where we operate."
 
Glover listed issues that her clients had with the resort, including the configuration of the cabins that would allow for 98 double-occupancies, the lack of an environmental report and landscaping plan, and questions surrounding water and sewer.
 
"There was a discussion about agreed conditions, and my clients put together a list which I will give to this board. There was a response to it, and many were adopted," she said. "They do not want to stop this development. They don't. They only want the ordinance to be complied with so everyone has the information and understands the impact. 
 
The project will use a septic line, installed but currently capped, to the city's waste management system; the water system is still under discussion. The project's civil engineer said the stormwater management system will be developed as the project's design progresses and will be in compliance.
 
Conservation Commissioner Heather Williams, who was in the audience, said her board had not received anything on this proposal yet and noted the property abuts public land and drains directly into Notch Brook and Cascades. 
 
"I'm concerned a little bit, both on the question of permitting from the Conservation Commission and on the question of what will be done to protect public lands around the Cascades, which is also a safety issue, because that area is steep," she said. 
 
Planning Chair Brian Miksic said the project has to go to Con Comm and Crespi pointed out that some 40 acres clear cut by the previous owner has been allowed to regrow and reduce runoff. He said clients will be apprised of conditions and that some type of fencing could be installed to block the area and encourage access through the trail head. 
 
Planner Virginia Riehl said she appreciated being able to walk the site with Crespi but asked if Building Inspector William Meranti could speak to the more technical side because not all of it was clear. Meranti said the developer has been meeting individually with city departments about sewer, water and fire protection.
 
"We are now gathering as a group to go over applications like this, and out of that came the letter that you've all received," he said. "I think Mr. Crespi already addressed the vast majority of them, although I think that to Virginia's point, it will have to be a list of conditions, because there are still unknowns."
 
Planners Kyle Hanlon and Lisa Blackmer said they supported the project, with Hanlon adding he appreciated the attempts to alleviate neighbors' concerns. Blackmer said she understood their objections but was disappointed that it meant the resort's services wouldn't be open to residents. 
 
Ghitis said they could have special rates for residents, but the resort would be not be open for day trips. 
 
Among the conditions were: appropriate city signoffs, including the fire chief and Con Comm; guest count lower than 50; limited events ending at 10 outside and 11 inside; a study on the lot lines prior to construction; no audible music at the lot lines; and limiting the number of events. 
 
Josh Field, a contractor who lives about 700 feet from the project on Reservoir Road, said all those development issues "get sorted out by talented people."
 
"Quite simply, it checks off all my boxes as a resident of North Adams and as a neighbor," he said, adding he wanted people to come here, and he wanted the city to get a windfall. "I would solicit my city to try to put on our best face for these guys. Thank you for choosing us and try to do something great."
 
In other business, the board approved Joshua Hall of Both/And Productions Corp. for a podcasting and digital media studio at 37 Main St., Suite 208-210, above the former Berkshire Bank. 
 
The Green Room will be a private club for members' use for workshops, podcasting and four to six small events a month, both members and ticketed public events. It will offer free space for local nonprofits. Maximum capacity is 30 people. 

Tags: glamping,   Planning Board,   resort,   

If you would like to contribute information on this article, contact us at info@iberkshires.com.

Weekend Outlook: Mother's Day & More

By Breanna SteeleiBerkshires Staff

Check out the events happening this weekend including fishing, plays, and more.

Editor's Pick

Wild Acres Fishing Derby
Wild Acres, Pittsfield
Time: Saturday, 8 to noon

This free fishing derby is for youth 14 and older. Catch the biggest fish to get a reward. The first 100 children will receive a free food voucher. 

More information here.

Daffodil & Tulip Festival
Naumkeag, Stockbridge
Time: Through Sunday
 
Final weekend to walk the grounds of Naumkeag and see the thousands of flowering bulbs. Timed tickets must be purchased in advance and will not be sold on-site. 
 
More information and ticket purchase here

Multiple Days

'Big Fish'
Taconic High School, Pittsfield
May 8, 9, 14, 15,16. Times vary at 2 and 7 p.m.

The Taconic Theater department stages "Big Fish," a musical about son who goes on an adventure to find the truth about his father's wild and unbelievable stories.

More information and tickets here.

'The Prom Musical'
Berkshire Community College
Showings Friday through Sunday

A small-town prom is getting too much attention when a student wants to bring her girlfriend as a date. A troupe of Broadway stars arrive in the conservative community out on a mission to help in this musical comedy.

More information and tickets here.

Baby Animals
Hancock Shaker Village, Pittsfield
Time: 11 to 4, through May 10

A sure sign of spring is the arrival of baby animals at Hancock Shaker Village in Pittsfield. See lambs, piglets, calves, chicks and kids and enjoy events and activities throughout the Village, from daily talks about the farm and the Shakers to craft demonstrations to walks along the Farm & Forest Trail.

Admission is $8 to $20, free for children 12 and younger. More information here.

Friday

Night of Dreams Fundraising Gala: Berkshire Dream Center
Berkshire Hills Country Club, Pittsfield
Time: 6 to 9 p.m.

This annual gala is a major fundraiser for the nonprofit Berkshire Dream Center. Enjoy dinner, music, a silent auction, and more. 

More information and tickets here.

Dead Man's Waltz
Stationery Factory, Dalton
Time: 7:30 p.m.

Enjoy classic songs from bands like The Grateful Dead with a full bar. Bring your partner and dance and sing the night away.

More information and tickets here.

Friday Karaoke
Dalton American Legion
Time: 6 p.m.

More information here.

Karaoke Night
Methuselah Bar & Lounge, Pittsfield
Time: 9 to midnight

Bring your friends and sing your favorite songs.

More information here.

Saturday 

Mass Kids Lit Fest 
Berkshire Athenaeum, Pittsfield
Time: 10:30 a.m.

Children's author Carol Munro will do a "Springtime Storks" storytime, based on a true story of resilience and love between two migrating birds. Children will have the chance to create their own stork hand puppets and learn more about storks.

More information here.

'Williamstown in 1776'
Williamstown Historical Museum
Time: 11 a.m.
 
Local historian and Historical Commission Chair Dustin Griffin will speak on the politics and leaders of Williamstown at the start of the Revolution. The museum is at 32 New Ashford Road. 
 
More information here

Berkshire Carousel Opening Day
Berkshire Carousel, Pittsfield
Time: noon to 5 p.m.

The carousel on Center Street opens for the season with face painting and other activities.

More information here.

Mountain Mindfulness Yoga
Mount Greylock Visitor Center
Time: 1 to 2:15 p.m.

This free yoga class is open to all levels. Enjoy the mountain views and connect with nature.
More information here.

Rusted Chains
Zinky's Pub, Dalton
Time: 8 to 11 p.m.

Rusted Chains performs a tribute to the '90s.

More information here.

Sunday

50th Annual Mother's Day Women's 5K/Mile Walk
Berkshire Community College, Pittsfield
Time: 8 a.m.

View Full Story

More North Adams Stories