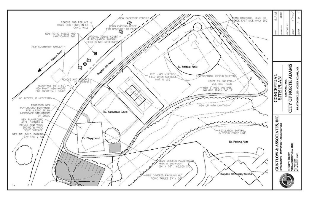
The city is looking to spruce up the athletic facilities and make the area more usable for all ages, such as adding parking, a walking track, a community garden and picnic tables.
A draft plan of what the park would look like.
The basketball court could also be joined by a tennis court.
The playground at Brayton will also be replaced with newer equipment.
NORTH ADAMS, Mass. — With new playgrounds in at Kemp Park and Windsor Lake, and the next phase of work set for Noel Field, the city is now looking to improve Braytonville Park.
Director of Community Development Larysa Bernstein this week said the city has applied for a Parkland Acquisitions and Renovations for Communities grant to overhaul the park and athletic field below Brayton Elementary School and, hopefully, add a tennis court and multi-use track wide enough to accommodate both bikers and walkers.
"We want to make it as inclusive of a park as possible to have something for everyone," she said. "It could use a facelift."
Most recently the city has utilized PARC grants to build the skatepark at Noel Field and PARC funds will also be used toward installing the splash park and other amenities at the downtown complex. Both grants came in at $400,000.
"We have recently received two large grants and they are very competitive grants, but I am hopeful," she said, of receiving a third. "I think we put together a strong application."
The City Council approved the application on June 26.
Bernstein said the basketball court will be redone as well as the softball field, which will also be shifted to accommodate a multi-use field.
"The plan is to shift the softball field that is there and redo it to make it a better practice field," she said. "So when the baseball-softball field is not in use they can have football, lacrosse soccer or whatever else."
The project also includes a parking lot for the field, also commonly referred to has Brayton Park or Brayton Hill Park. Currently, there is no parking and cars often line up along the road that leads to the Northern Berkshire Family YMCA and Brayton Hill Apartments.
The project in its entirety is slated to cost $455,000 and the city is requesting $318,500, or 70 percent of the project, from PARC. The remaining 30 percent ($136,500) will come for the next round of Community Development Block Grant funds. The Noel Field work was done the same way with the city providing the matching funds to the state grant through its CDBG mini-entitlement grant.
The city has also secured CDBG funding to update the playground equipment at the park.
Bernstein said the playground should be complete next year and if all goes well with the PARC and CDBG applications, the entire project would be complete by July 2020.
"It will be a good project for the community and that area," she said. "Especially with the school, YMCA and the housing."
If you would like to contribute information on this article, contact us at info@iberkshires.com.
Your Comments
iBerkshires.com welcomes critical, respectful dialogue. Name-calling, personal attacks, libel, slander or foul language is not allowed. All comments are reviewed before posting and will be deleted or edited as necessary.
No Comments
Berkshire County Homes Celebrating Holiday Cheer
By Breanna SteeleiBerkshires Staff
There's holiday cheer throughout the Berkshires this winter.
Many homeowners are showing their holiday spirit by decorating their houses. We asked for submissions so those in the community can check out these fanciful lights and decor when they're out.
We asked the homeowners questions on their decorations and why they like to light up their houses.
In Great Barrington, Matt Pevzner has decorated his house with many lights and even has a Facebook page dedicated to making sure others can see the holiday joy.
Located at 93 Brush Hill Road, there's more than 61,000 lights strewn across the yard decorating trees and reindeer and even a polar bear.
The Pevzner family started decorating in September by testing their hundreds of boxes of lights. He builds all of his own decorations like the star 10-foot star that shines done from 80-feet up, 10 10-foot trees, nine 5-foot trees, and even the sleigh, and more that he also uses a lift to make sure are perfect each year.
"I always decorated but I went big during COVID. I felt that people needed something positive and to bring joy and happiness to everyone," he wrote. "I strive to bring as much joy and happiness as I can during the holidays. I love it when I get a message about how much people enjoy it. I've received cards thanking me how much they enjoyed it and made them smile. That means a lot."
Pevzner starts thinking about next year's display immediately after they take it down after New Year's. He gets his ideas by asking on his Facebook page for people's favorite decorations. The Pevzner family encourages you to take a drive and see their decorations, which are lighted every night from 5 to 10.
In North Adams, the Wilson family decorates their house with fun inflatables and even a big Santa waving to those who pass by.
The Wilsons start decorating before Thanksgiving and started decorating once their daughter was born and have grown their decorations each year as she has grown. They love to decorate as they used to drive around to look at decorations when they were younger and hope to spread the same joy.
"I have always loved driving around looking at Christmas lights and decorations. It's incredible what people can achieve these days with their displays," they wrote.
The Wilsons' invite you to come and look at their display at 432 Church St. that's lit from 4:30 to 10:30 every night, though if it's really windy, the inflatables might not be up as the weather will be too harsh.
In Pittsfield, Travis and Shannon Dozier decorated their house for the first time this Christmas as they recently purchased their home on Faucett Lane. The two started decorating in November, and hope to bring joy to the community.
"If we put a smile on one child's face driving by, then our mission was accomplished," they said.
Many homeowners are showing their holiday spirit by decorating their houses. We asked for submissions so those in the community can check out these fanciful lights and decor when they're out.
click for more